
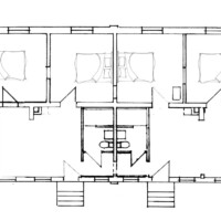
Direkt auf der anderen Seite der Straße stehen, neben der Dorfkirche, die ehemaligen Landarbeiterhäuser des Gutes. Ursprünglich war jedes der Häuser in 4 Wohnungen aufgeteilt – heute sind es Doppelhäuser. Eines davon wurde 2018/2019 zum Appartement umgebaut.
- 4 Schlafzimmer
- 2 Bäder
- Küche
- Wohnraum
- Wlan, Sat TV
- Garten
Heizung mit Kaminöfen und Infrarot Elektroheizungen
















